Mẫu thiết kế xây dựng nhà 2 tầng diện tích 4x15m
Kiến trúc sư thiết kế Tầng trệt, Với bố trí đơn giản cầu thang nằm giữa phía trước là phòng khách phía sau là bếp với tạo cho căn nhà mát mẽ, tươi mới và trà đầy năng lượng nhưng kiến trúc sư chia không gian và ngăn cách bằng cao độ nền (bếp cao hơn phòng khách), phía sau là phòng ngủ đầy tiện nghi.
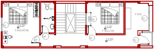
Kiết trúc sư thiết kế Tầng 1 gồm 2 phòng ngủ, 1 phòng thờ và 1 vệ sinh chung. Phòng ngủ master được bài trí những món nội thất cơ bản như giường ngủ, tủ quần áo, bàn trang điểm và bàn làm việc được bố trí gần cửa sổ để lấy sáng . Phòng ngủ con được bố trí những món nội thất cơ bản như giường ngủ, tủ quần áo, bàn học rất tiện nghi.
Thiết kế tầng trệt
Bảng vẽ cấu trúc bên trong nhà 2 tầng
Mong rằng với phương án bố trí sẽ đáp ứng được tiện nghi cũng như nhu cầu sinh hoạt của anh và gia đình. Sau đây là một số hình ảnh tham khảo giúp các bạn hình dung không gian sống của mình được tốt hơn
Kết cấu nội thất bên trong ngôi nhà






Không có nhận xét nào